Rif: CS 42
RICCIONE
RIMINI - zona Centro
In signorile palazzina completamente ristrutturata esternamente in pieno cento con accesso diretto sul Via Ceccarini, vicinissima al mare, al palacongressi ed da tutti i principali servizi ma allo stesso tempo riservata e lontana dai rumori del Viale Ceccarini gremito in estate, proponiamo grazioso appartamento sito al secondo piano servito da ascensore e composto da ampio soggiorno con angolo cottura, camera da letto matrimoniale, cameretta, ampio e vivibilissimo terrazzo loggiato per pranzi e cene all'aperto oltre a comodo posto auto privato all'interno del condominio. Posizione invidiabile assolutamente da vedere!
Per info e visite Marco 3384183713
Per info e visite Marco 3384183713
Consistenze
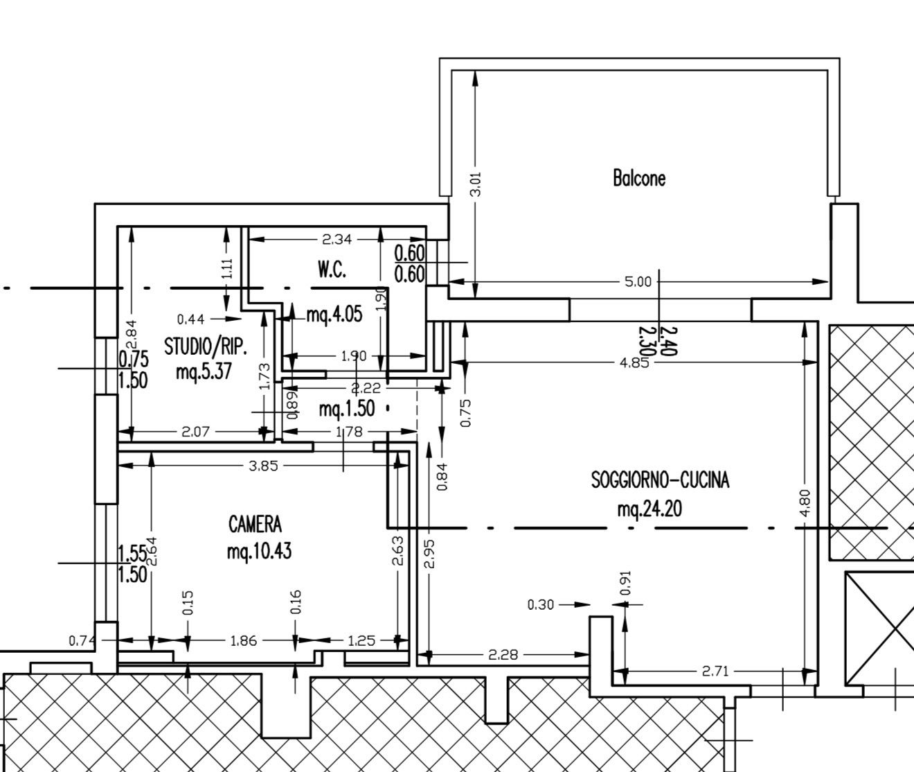
| Descrizione | Superficie | Sup. comm. |
|---|---|---|
| Principali | ||
| Immobile - 2° piano | 65 Mq | 65 Mqc |
| Terrazza - 2° piano | 15 Mq | 8 Mqc |
| Posto auto | 15 Mq | 8 Mqc |
| Cantina - piano interrato | 6 Mq | 3 Mqc |
| Totale | 84 Mqc | |









