Rif: GDP U13
RICCIONE
RIMINI - zona Paese
La residenza “Giardini del Porto” verrà edificata in zona di grande pregio, in posizione ottimale per raggiungere il mare, a pochi passi da Viale Ceccarini, dal Porto Canale, e da Viale Dante. L'edificio condominiale che sorgerà permetterà di vivere in un contesto abitativo immerso nel verde, adiacente al giardino “Nicola Casali”, sindaco di Riccione negli anni '50, in una zona caratterizzata dalla vicinanza a tutti i principali servizi, dal centro, seppur godendo della posizione appartata e silenziosa. Le unità abitative saranno 13, distribuite su quattro piani fuori terra, tutte con autorimesse o posti auto di proprietà; le residenze al piano terra saranno corredate di giardini in uso esclusivo, quelle ai piani intermedi di balconi abitabili in parte loggiati. I due attici, poi, oltre alle generose dimensioni degli spazi interni, godranno di terrazzi con vista sulle verdeggianti chiome delle alberature circostanti. Le tipologie abitative sono state accuratamente studiate, al fine di soddisfare il desiderio e le necessità di spazi di chi si affaccia all'acquisto di una residenza al mare o come dimora abituale.
Il capitolato, la cui redazione è in fase di ultimazione, prevede:
- progettazione sostenibile improntata all'efficienza energetica;
- particolare attenzione all' isolamento termico ed acustico;
- Gas Free;
- Impianto fotovoltaico dedicato;
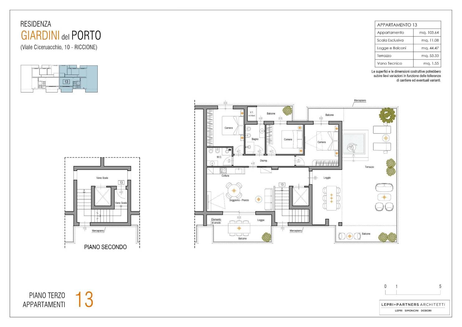
Appartamento in oggetto ATTICO sito al terzo ed ultimo piano di ampia metratura composto da ingresso con ascensore diretto, ampio soggiorno con angolo cottura, 3 camere da letto matrimoniali, due bagni, stupendo terrazzo vivibile di grandi di menzioni di c.ca 100 ma. tra logge e balconi.
Garage al piano semi interrato e/o posti auto scoperti acquistabili separatamente.
Ufficio Vendite:
Riccione Immobiliare 3336677733
CapodagliREAdvisory 3409001492
Il capitolato, la cui redazione è in fase di ultimazione, prevede:
- progettazione sostenibile improntata all'efficienza energetica;
- particolare attenzione all' isolamento termico ed acustico;
- Gas Free;
- Impianto fotovoltaico dedicato;
Appartamento in oggetto ATTICO sito al terzo ed ultimo piano di ampia metratura composto da ingresso con ascensore diretto, ampio soggiorno con angolo cottura, 3 camere da letto matrimoniali, due bagni, stupendo terrazzo vivibile di grandi di menzioni di c.ca 100 ma. tra logge e balconi.
Garage al piano semi interrato e/o posti auto scoperti acquistabili separatamente.
Ufficio Vendite:
Riccione Immobiliare 3336677733
CapodagliREAdvisory 3409001492
Consistenze
| Descrizione | Superficie | Sup. comm. |
|---|---|---|
| Principali | ||
| Immobile - 3° piano | 104 Mq | 104 Mqc |
| Terrazza - 3° piano | 100 Mq | 50 Mqc |
| Totale | 154 Mqc | |









