Riccione Immobiliare Riccione Immobiliare

Riccione Immobiliare

Rif VBS 77

Foto ID 6425095

Descrizione

RICCIONE CENTRO/Ceccarini - Nuova costruzione di prestigiosa palazzina con altissimo livello di finiture interne/esterne - Proponiamo in vendita palazzina residenziale di sole sei unità abitative.
Elegante costruzione centralissima, a soli 500 metri dal mare.
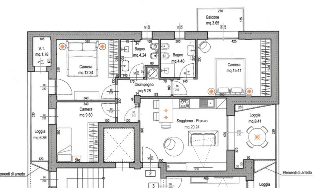
APPARTAMENTO n. 2 - PIANO SECONDO: L'immobile in oggetto è posto al quarto piano ed è composto da una ampia zona giorno con cucina separata, tre camere da letto, due bagni. Comodi terrazzi, in gran parte loggiati, a servizio sia del reparto giorno, sia della zona notte e vano tecnico. Due Posti auto (compresi nel prezzo) e cantina di proprietà.
Finiture di pregio con ricco capitolato descrittivo.
Fine lavori prevista: Gennaio 2026.

Consistenze

Descrizione Superficie Sup. comm.
Principali
Immobile - 2° piano 90 Mq 90 Mqc
Terrazza - 2° piano 32 Mq 16 Mqc
Box/Garage - piano interrato 27 Mq 14 Mqc
Totale 120 Mqc

Dettagli

Contratto Vendita
Rif VBS 77
Prezzo € 770.000
Provincia Rimini
Comune Riccione
Zona Paese
Indirizzo Viale dei Mille 3/e
Superficie 120 mq
Vani 4
Camere 3
Bagni 2
Classe energetica A4 (DL 90/2013)
EPgl,nren 175 kwh/m2 anno
Piano 2 / 5
Riscaldamento autonomo
Condizioni nuova costruzione
Spese condominiali € 70
Anno di costruzione 2026
Ascensore si
Garage 27 mq
Parcheggio si
Cucina angolo cottura
Balcone si
Terrazza si

Planimetrie

Planimetria ID 6425096

Photogallery

Foto ID 6425095
Riccione Immobiliare
Via Dei Mille, 3/e 47838 RICCIONE (RN)
3336677733
C.F.: 02681980401 P.IVA: 02681980401
Stampa